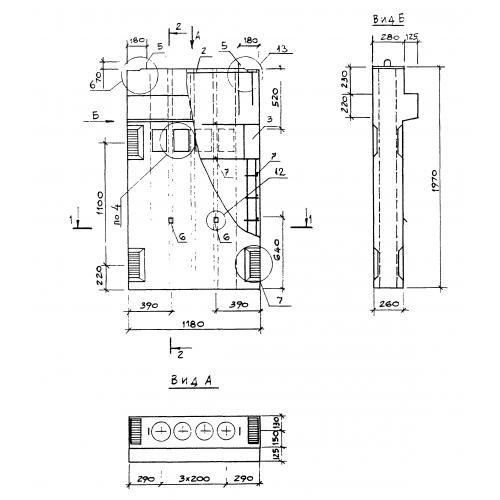
Вентблок-диафрагма 1ВД 20.12.26 представляет собой элемент железобетонных конструкций, используемый для обеспечения вентиляции и дренажа. Изготовлен из высококачественных материалов, обладает прочной конструкцией и долгим сроком службы. Имеет специальное отверстие для подключения вентиляционных систем.
1ВД 20.12.26 применяется в строительстве железобетонных конструкций, таких как подземные парковки, туннели, подземные склады и другие объекты. Он обеспечивает эффективную вентиляцию и дренаж, что способствует сохранению конструкций от влаги и обеспечивает комфортные условия внутри помещений. Этот вентблок-диафрагма является надежным и долговечным решением для обеспечения безопасности и функциональности строительных объектов.









