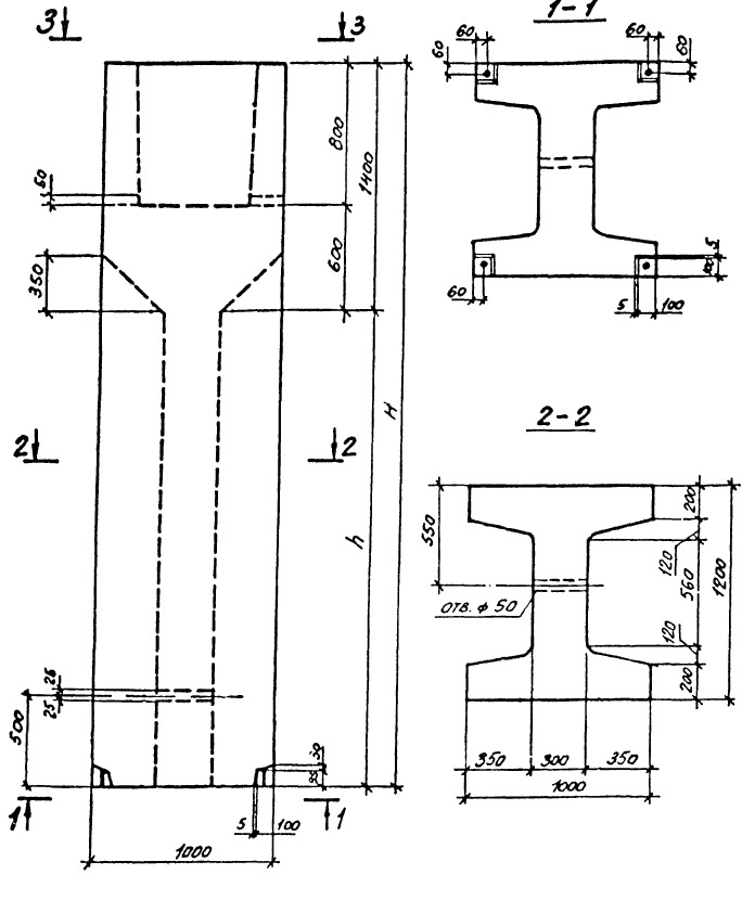
Блок-стакан верхний ВБ 9-12-39-2 представляет собой элемент железо-бетонных конструкций, используемых в строительстве. Он имеет специальную форму, которая обеспечивает прочное соединение с другими блоками-стаканами. Изготовлен из высококачественных материалов, блок-стакан обладает высокой прочностью и долговечностью.
Блок-стакан верхний ВБ 9-12-39-2 применяется в строительстве зданий и сооружений из железобетонных конструкций. Он используется для создания опорных структур, перекрытий, стен и других элементов зданий. Блок-стаканы обеспечивают надежное соединение между бетонными элементами, что повышает прочность и устойчивость всей конструкции. Этот элемент является важной составляющей при возведении каркаса здания и обеспечивает его долговечность и надежность.









