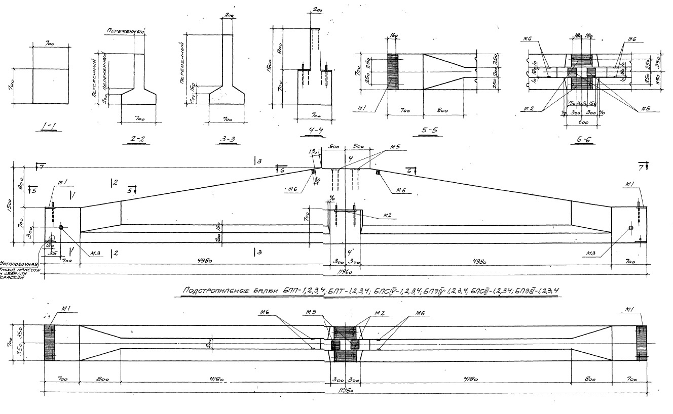
Балка подстропильная БПТ 1 представляет собой железобетонный элемент, который используется для укрепления кровли здания. Она обеспечивает необходимую поддержку стропилам и способствует равномерному распределению нагрузки на всю конструкцию. Балка имеет прочную железобетонную конструкцию, что обеспечивает надежность и долговечность всей кровли.
Балка подстропильная БПТ 1 применяется в строительстве жилых, коммерческих и промышленных зданий. Она идеально подходит для создания кровли различных форм и размеров, обеспечивая необходимую поддержку и жесткость конструкции. Балка подстропильная БПТ 1 широко используется как в новом строительстве, так и при реконструкции и ремонте зданий.









